01_aktuelles
Bauernhof | Aachen | 2023
Halle Nord 3 | Aachen | 2022
Das Liebig | Aachen | 2021
02_projekte
Halle Nord 1 | Aachen | 2023
Lofts | Aachen | 2023
Küchensanierung | Aachen | 2021
Zweifamilienhaus | Aachen | 2017+2021
Schlachthofcafé | Aachen | 2019
Einfamilienhaus | Aachen | 2016
Wohnung | Aachen | 2016
Neubau KVT | Aachen | 2016
Halle 60 | Aachen | 2015
Verbindungshalle | Aachen | 2015
Kraftversorgungsturm | Aachen | 2015
Bogenhalle | Aachen | 2014
03_team
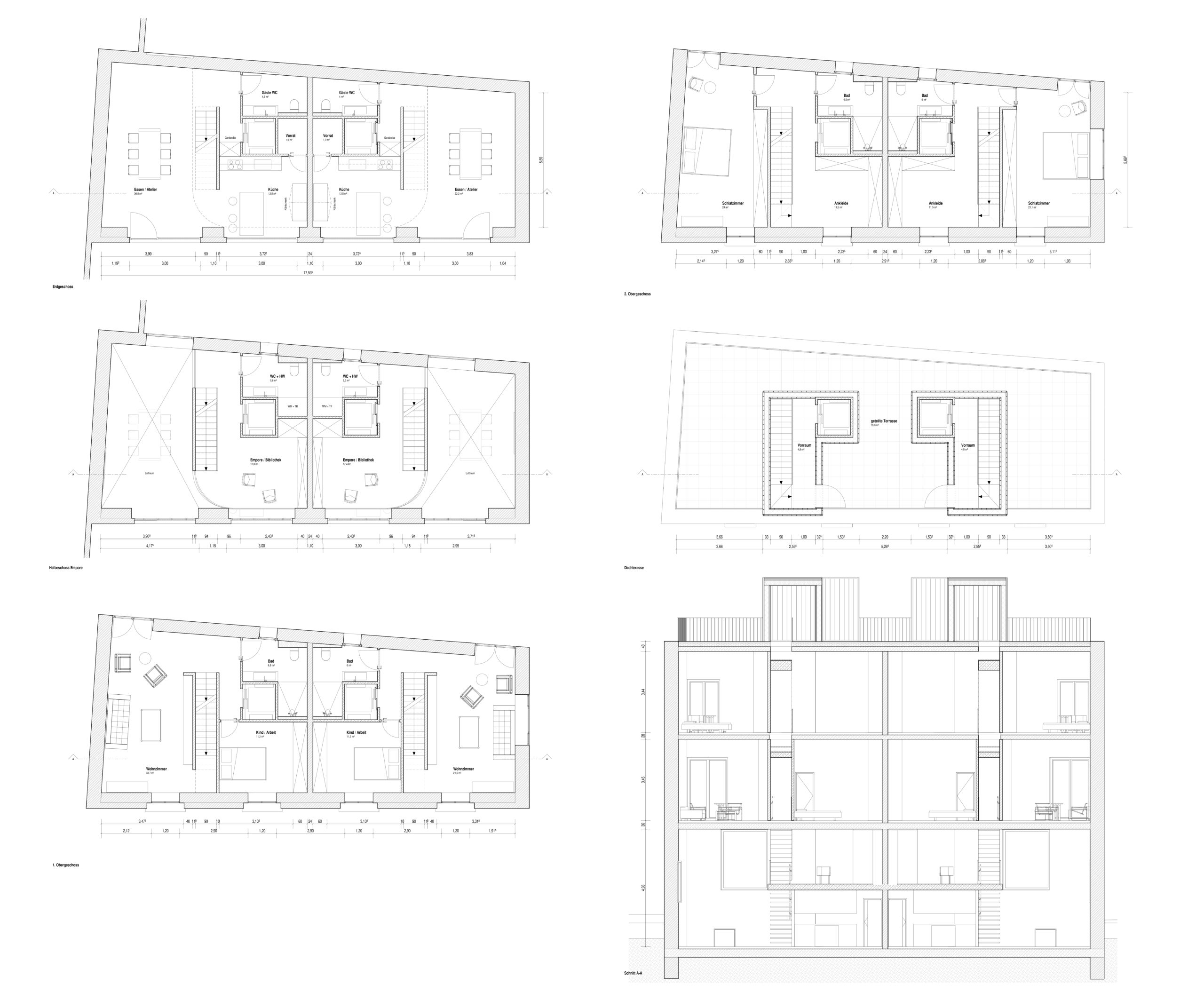
Lofts | Aachen
Kernsanierung
2023